深喜集团
设为首页
加入收藏
首页
关于深喜
集团简介
下属公司
企业荣誉
在建项目
企业文化
诚信经营
关爱员工
公益活动
新闻中心
集团新闻
各地动态
旗下品牌
麦尚城
嘉瑞宝
联盟商家
购物
美食
生活
休闲娱乐
深喜招商
嘉瑞宝
麦尚城
深喜招聘
职业发展
热聘职位
站点信息
站点地图
投诉建议
友情链接
联系我们
联系我们
OA系统
深喜招商
Leasing
嘉瑞宝
麦尚城
首页
>
深喜招商
>
麦尚城
>
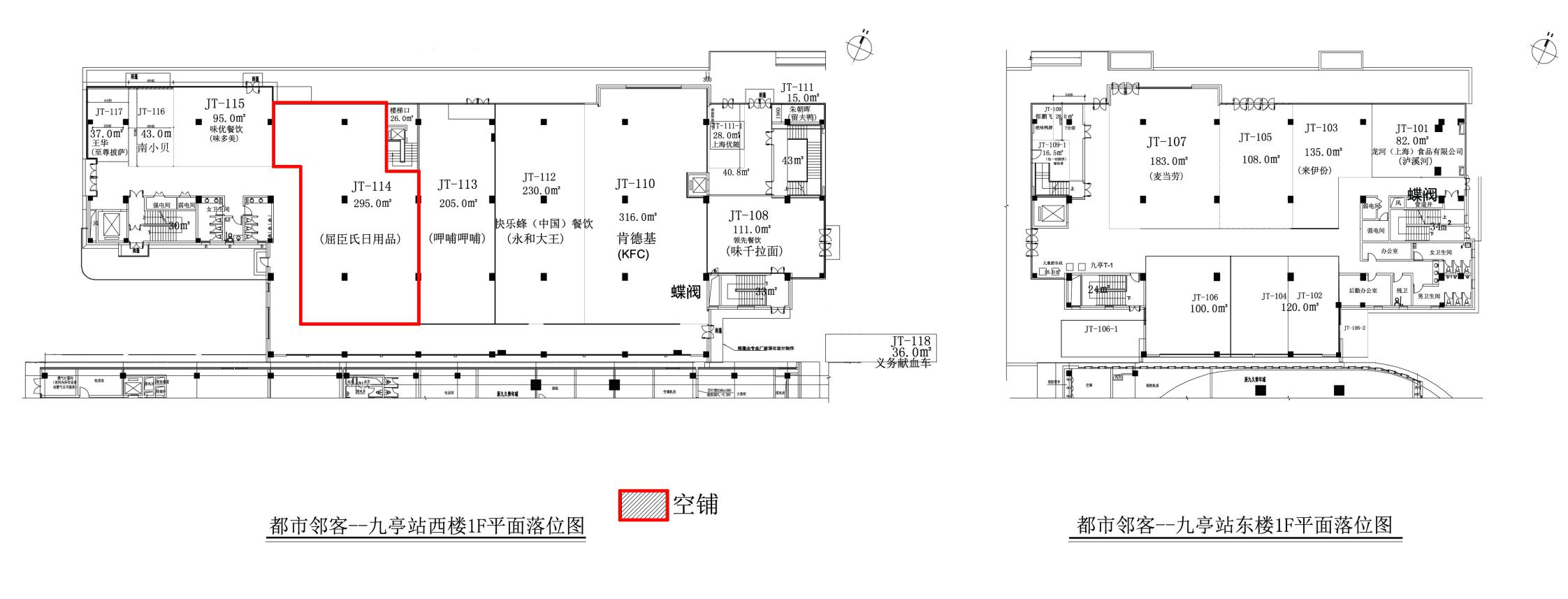
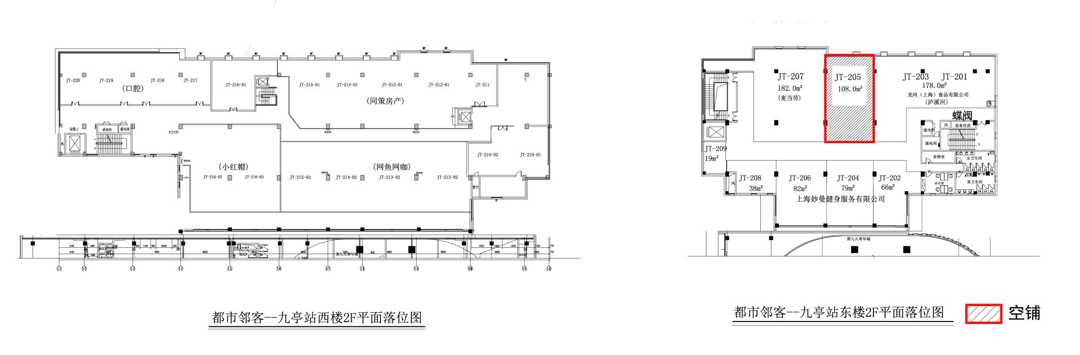
九亭店空铺招商
九亭店空铺招商
时间:2022-1-28 9:45:46作者:
在线申请
上一篇:
漕溪店空铺招商
下一篇:
没有了